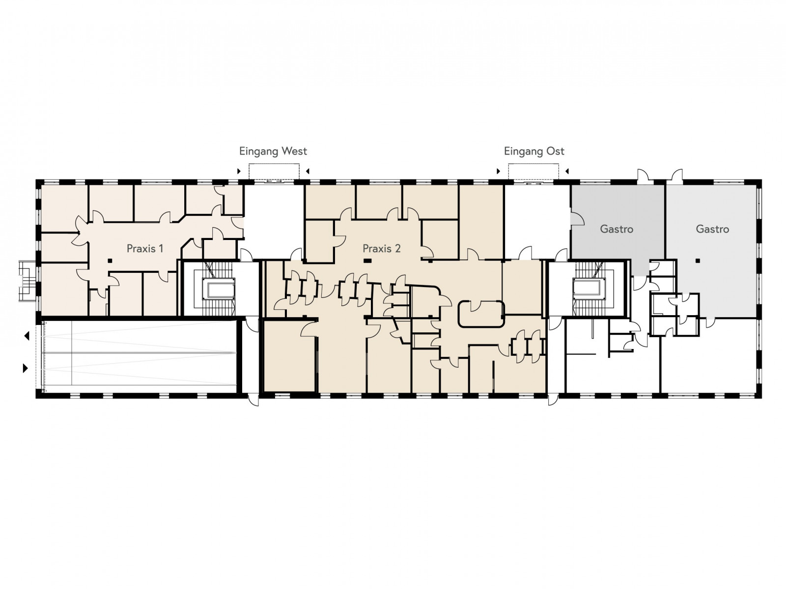
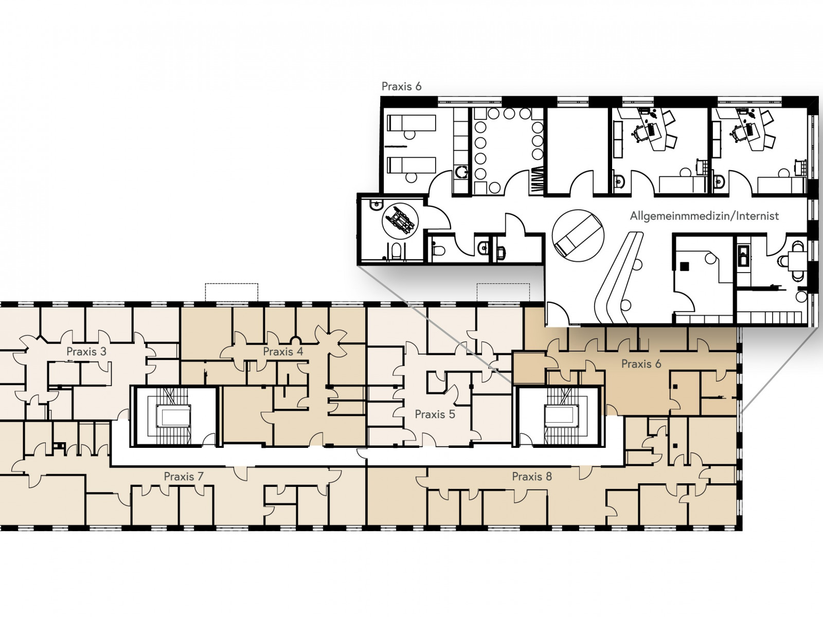
MEDICENTER SÜD, Straßlach
Neubau eines Ärztehauses im Münchener Süden mit modernen, hellen und flexiblen Praxisflächen für Fachärzte verschiedener Fachrichtungen und ergänzendem therapeutischen Angebot.
Leistungsphase: 01 – 08
Fertigstellung: 2021
Budget: 15 Mio. Euro
Unsere Leistungsbereiche
—
Vorplanung / Kostenschätzung
—
Entwurfsplanung
—
Kostenberechnung
—
Genehmigungsverfahren
—
Ausführungsplanung
—
Vergabe/Leistungsbeschreibung
—
Objekt-und Bauüberwachung
—
Dokumentation