ISARHOCH workresort, Straßlach

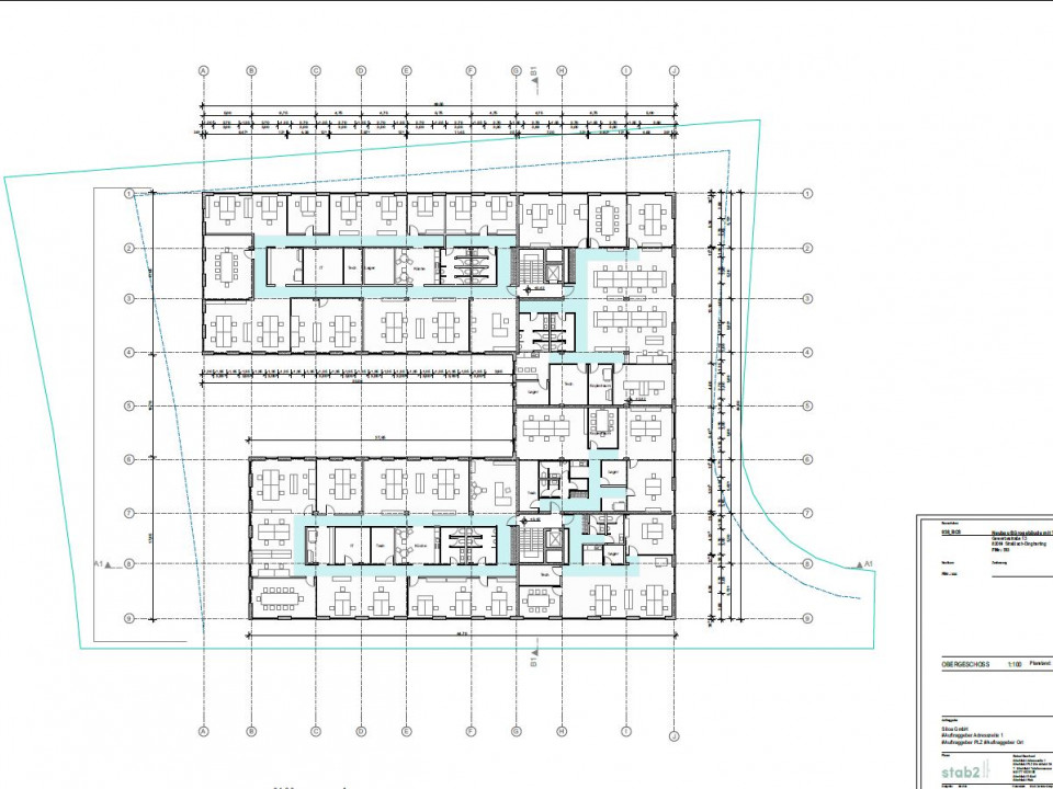
Neubau eines Bürogebäudes mit 4900 m² Bruttogeschossfläche
und hohem Stellplatzangebot für flexible Büroeinheiten verschiedener Größen und Büroformate im Münchener Süden.
Auf insgesamt 4.900 m² Bruttogeschossfläche gibt es viel Raum und Flexibilität für die Umsetzung individueller Bürokonzepte. Mit einer Mindestmietfläche ab 160 m² können klassische Schnitte bis hin zu hybriden Smart Offices realisiert werden. Die naturnahe Lage mit mehr als 2.000 m² großzügig gestalteter Freifläche lädt zu kreativen und kommunikativen Outdoor-Meetings und Erholungsphasen an Outdoor-Besprechungstischen und Lounge-Inseln mit Blick auf die umliegenden Felder und den Wald am Isarhochufer ein

Leistungsphase: 01 – 08

Fertigstellung: Mitte 2022

Budget: ca. 15 Mio. Euro

Unsere Leistungsbereiche

Vorplanung / Kostenschätzung

Entwurfsplanung

Kostenberechnung

Genehmigungsverfahren

Ausführungsplanung

Vergabe / Leistungsbeschreibung

Objekt-und Bauüberwachung

Dokumentation